
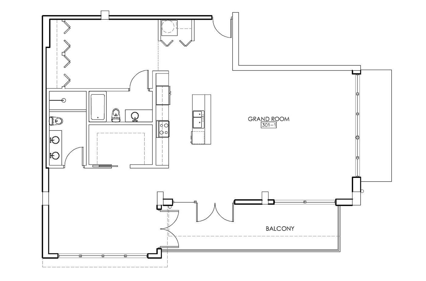
Experience authentic loft living at Avenue Lofts in Fort Lauderdale's vibrant Flagler Village. This stunning 3rd-floor unit boasts 20-foot ceilings, polished concrete floors, and exposed ductwork, creating a true industrial-chic aesthetic. Enjoy two full bedrooms, two baths, and a large private balcony perfect for relaxing. The building offers exceptional amenities, including a heated rooftop pool, a state-of-the-art gym, a club room, and a secure parking garage. Just steps from FAT Village and minutes from Las Olas, Brightline, and the beach. A pet-friendly, urban oasis in a prime location.
| MLS # | R11119800 |
|---|---|
| Listing Type | For Sale |
| Style | Condominium |
| HOA Dues | $1,468 |
| Sub-Type | Resale |
| Status | Active |
| Year | 2005 |
| Days On Site | 69 |
| Listing Provided By | True Floridian Realty | Greg Mullen |
| Bed(s) | 2 |
|---|---|
| Bath(s) | 2 Total |
| SQ Feet | 1,548 |
| Garage | 1 |
| Pool | Yes |
| Story(s) | 4 |
| Zoning | resident |
| Property View | Yes |
| Property | 12274 |
|---|
| State | FL |
|---|---|
| County | Broward |
| City | Fort Lauderdale |
| Zip Code | 33301 |
| Area | 3810 |
| Subarea | Ft Ldale NW(3390 3400;3460;3540 3560;3720;3810) |
| Community Name | Avenue Lofts |
| State | FL |
|---|---|
| County | Broward |
| City | Fort Lauderdale |
| Zip Code | 33301 |
| Area | 3810 |
| Subarea | Ft Ldale NW(3390 3400;3460;3540 3560;3720;3810) |
| Community Name | Avenue Lofts |